Ingatlanok összehasonlítása

Új építésű ház eladó

Győrság
59.900.000 Ft
630.526 Ft / m2

Leírás

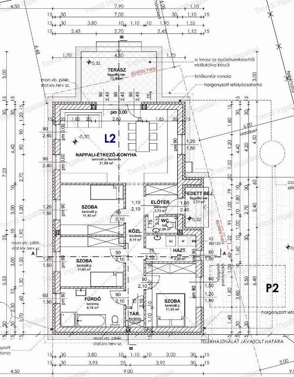
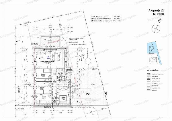
Nappali + 3 szobás ház eladó! Győrság új építésű részén 94,61 nm-es ikerház 491 nm-es telekrészen fűtéskész állapotban eladó. A két ház 981 nm-es telken épül, önállóan megközelíthetők, nincs közös fal. A remek elosztású házban amerikai konyhás nappali, 3 szoba, fürdőszoba WC-vel, háztartási helyiség, külön WC, tároló, közlekedő, előtér található. A nappaliból elérhető 13,90 nm-es terasz. A ház belső elrendezése készültségi fokhoz mérten még változtatható. A ház 30-as falazóelemből, 15 cm-es homlokzati szigeteléssel, 3 rétegű műanyag, hőszigetelt üvegezésű nyílászárókkal kerül kivitelezésre. Az ingatlan fűtését kondenzációs kazán biztosítja padlófűtéssel. A fürdőszobába törölközőszárítós radiátor kerül. Felár ellenében hőszivattyús fűtés, kerti csap, riasztó előkészítés, klíma- és redőnyelőkészítés, térkövezés stb. kérhető. Várható átadás: 2026 tavasz vége Az ingatlan fűtéskész ára: 59.900.000 Ft. Kulcsrakész befejezés kérhető.  Az ár tartalmazza a telek árát is. Bővebb információkért forduljon hozzám bizalommal. Hétköznap és hétvégén is várom hívását! Díjmentes, bankfüggetlen hitelügyintézéssel állunk rendelkezésére.

További adatok

  • Azonosító: 1655761
  • Épület szintjei: -
  • Méret: 95 m2
  • Telek méret: 491 m2
  • Szobák száma: 4 db
  • Félszobák száma: 0 db
  • Fűtés: -
  • Állapot: Új építésű
  • Építési év: -
  • Ház szerkezete: Tégla
  • Erkély/terasz: -
  • Melléképület: -
  • Tetőtér: -

Elhelyezkedés