Ingatlanok összehasonlítása

Eladó 74 nm-es Lakás Kaposvár

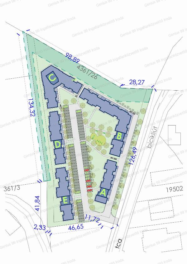
Kaposvár
65.068.500 Ft
879.304 Ft / m2

Leírás

ELADVA ! Kaposvár exkluzív lakóparkjában újépítésű lakás eladó ! Most lehetősége nyílik arra, hogy elsőként költözzön be a város legmodernebb és legbiztonságosabb zárt lakóparkjába, a Zaranyi lakóparkba, amely Kaposvár központjához közel, mégis nyugodt, zöldövezeti környezetben helyezkedik el. A kínált ingatlan az A épület 8. számú lakása, amely az első emeleten található és 74,31 m²-es, amelyben 2 szoba, amerikai konyhás nappali, fürdőszoba és külön WC, illetve egy hatalmas méretű erkély is található, így ideális választás pároknak, családoknak vagy akár befektetők részére is. A modern otthonban hőszigetelt 3 rétegű üvegezéssel ellátott műanyag nyílászárók, elektromos redőny előkészítés, valamint prémium minőségű hideg- és melegburkolatok kerülnek beépítésre, amelyek egyedi igény szerint, a megadott katalógusból választhatók – így teljes mértékben saját ízlésére formálhatja új otthonát. A lakás tervezése a maximális komfortot helyezte előtérbe: a legmodernebb levegő-víz hőszivattyús rendszer gondoskodik a padló és mennyezet fűtés-hűtésről. Minden lakás külön mérőórákkal ellátott, a maximális komfortért és a központi és helyiségenkénti szabályozás miatt a rezsiköltségek kedvezően alakulnak. A biztonságos parkolást egy saját névre dedikált felszíni parkolóhely garantálja, amely benne van a lakás vételárában és mindig az Ön rendelkezésére áll, de igény esetén a lakóparkban opcionálisan garázs és saját tároló is vásárolható. A lakópark elektromos kapuval zárt terület, amely kizárólag a lakók számára elérhető, így biztosítva a nyugalmat és a biztonságot. A kisgyermekes családokra figyelemmel a lakópark belső területén egy játszótér is kialakításra kerül.  Ha Ön is egy új és modern, saját igényeire szabható új építésű lakásra vágyik Kaposváron, akkor a Zaranyi Lakóparkban megtalálja új otthonát. Ne hagyja ki ezt a lehetőséget! AMENNYIBEN TOVÁBBI KÉRDÉSEI LENNÉNEK AZ INGATLANNAL KAPCSOLATBAN VAGY ESETLEG SZEMÉLYESEN IS MEGTEKINTENÉ KÉREM KERESSEN BIZALOMMAL AZ ALÁBBI ELÉRHETŐSÉGEIMEN. Ár.: Bruttó 65.068.500.- Ft Érd: +36302562334 https://genius99.hu/ingatlanok/6706983/ Azonosító: A-8 A weboldalon szereplő információk (képek, szövegek ... stb.) teljes mértékben a szerző jogi tulajdonát képezik. A weboldalon szereplő információkat, adatokat másolni, felhasználni csak a szerző előzetes engedélyével lehetséges. A tévedés, árváltoztatás és elírás jogát előzetes tájékoztatás nélkül fenntartjuk!

További adatok

  • Azonosító: 1655197
  • Épület szintjei: -
  • Emelet: -
  • Méret: 74 m2
  • Szobák száma: 0 db
  • Félszobák száma: 2 db
  • Fűtés:
  • Állapot: Új építésű
  • Lift: -
  • Erkély/terasz: -

Elhelyezkedés