Ingatlanok összehasonlítása

Eladó 86 nm-es 3 szobás Ház Kecskemét

Kecskemét - Felsőszéktó
72.900.000 Ft
847.674 Ft / m2

Leírás

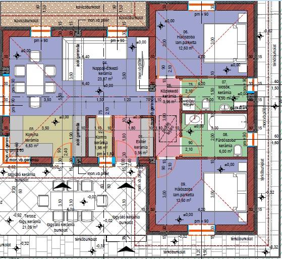
Bács-Kiskun Vármegye Kecskemét Felsőszéktó  ELADÓ  Zártkerti művelés alól kivett, 603 nm-es terület és a rajta levő  2023-ban megépült nettó: 76 nm-es, amerikai konyhás nappali + 2 szobás  lakóház, 21,5 nm-es terasszal. Művelési ág alól kivont, nem kell kifüggeszteni! Az ingatlan a Hetényegyházi útról kb: 200 m földúton közelíthető meg. Bekerített 603 nm-es sarki telek, csendes, nyugodt szinte forgalommentes környezet, jó szomszédsággal, buszmegállók bevásárlási lehetőség a közelben. Az amerikai konyha, kamra nappali étkezős + 2 szobás, fürdő  wc egyben, de a háztartási helyiségben még 1 wc kialakítva. A ház a 2023-ban az akkori ÉPHAT szabályai szerint megépült, vasbeton sávalap, 30-as téglafalazat, tégla válaszfalak, kombi gázkazán, cirkó fűtés, klíma, műanyag 3 rétegű hő és hangszigetelt nyílászárók, 15 cm nikecel szigetelés, nemes vakolat, ácsolt tetőszerkezet betoncserép. Készen várja új tulajdonosát, csak egy kis kertrendezés maradt az odaköltözőnek, fúrtkút rendelkezésre áll. Főbb jellemzők: - Jó közlekedés, csendes jó környék - Szinte új ház - Gyorsan birtokba vehető Köszönöm, hogy elolvasta a hirdetésem, ha felkeltettem az érdeklődését keressen bizalommal.  

További adatok

  • Azonosító: 1654045
  • Épület szintjei: 1
  • Méret: 86 m2
  • Telek méret: 606 m2
  • Szobák száma: 3 db
  • Félszobák száma: 0 db
  • Fűtés: Egyéb
  • Állapot: Újszerű
  • Építési év: 2023
  • Ház szerkezete: Tégla
  • Erkély/terasz: -
  • Melléképület: -
  • Tetőtér: -

Elhelyezkedés