Ingatlanok összehasonlítása

Eladó 130 nm-es 5 szobás Ház Gödöllő

Gödöllő
144.900.000 Ft
1.114.615 Ft / m2

Leírás

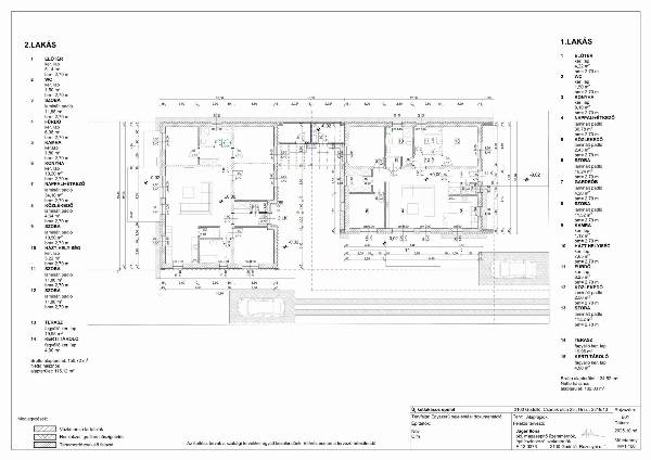
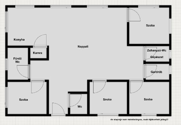
Gödöllő egyik legkeresettebb kertvárosi részén nappali + 4 szobás ikerházfél megbízható referenciákkal rendelkező építőtől eladó! Műszaki adatok: - 30-as okos tégla falazat - 10cm grafitos és 4cm XPS szigetelés, - 3 réteg üvegezésű műanyag nyílásszárók alumínium külső párkányokkal,  - szürke színű elektromos alu redőnyök, szúnyoghálókkal,  - alumínium csatorna,  - 3x16 amper + H tarifás óra, - fűtésről kondenzációs gázkazán gondoskodik padlófűtéssel, de hőszivattyú is kérhető, - hűtő-fűtő klíma, - garázs választja el a két oldalt, így nincs közös falrész. Ár tartalmazza: - Hideg-meleg burkolatokat 5500.-Ft/nm, - laminált parkettát 4500.-Ft/nm, - mosdókat 20.000.-Ft/db, - szanitereket 15.000.-Ft/db,  - kádat 50.000.-Ft/db,  - Wc-ket 30.000.-Ft/db, - gázkazánt 350.000.-Ft, - lámpa kiállásokat 25.000.-Ft/db, - bejárati ajtót 250.000.-Ft, - beltéri ajtókat 70.000.-Ft/db értékben. Elosztás: - Nappali-konyha-étkező, kamra, 3 szoba, gardrób, fürdőszoba, zuhanyzó-gépészet + terasz.  Telek: - Teljesen elszeparált, utcafronton antracit alumínium kerítés kerül kiépítésre. Burkolatok, belső ajtók a vevői igényei szerint még szabadon választhatók! Kérésre teljes műszaki tartalmat, alaprajzot szívesen küldünk! Várható átadás 2026 nyár Irányár: 144,9MFt Hivatkozási szám: 2518171. Megtekinthető telefonos időpont egyeztetés alapján: Sápi Balázs +36 20 772-2429 sapibalazs@godolloi.hu  GÖDÖLLŐ INGATLANKÖZPONT - www.godolloi.hu: Gödöllő és környéke legnagyobb ingatlan választéka /Gödöllő, Szada, Veresegyház, Kistarcsa, Kerepes, Erdőkertes, Fót, Dunakeszi/ eladó-kiadó családi ház, telek, lakás! Ingatlan építés és felújítás!

További adatok

  • Azonosító: 1653737
  • Épület szintjei: 1
  • Méret: 130 m2
  • Telek méret: 500 m2
  • Szobák száma: 5 db
  • Félszobák száma: 0 db
  • Fűtés: Egyéb
  • Állapot: Új építésű
  • Építési év: 2025
  • Ház szerkezete: Tégla
  • Erkély/terasz: -
  • Melléképület: -
  • Tetőtér: -

Elhelyezkedés