Ingatlanok összehasonlítása

Eladó 151 nm-es 5 szobás Ház Érd

Érd
129.999.999 Ft
860.927 Ft / m2

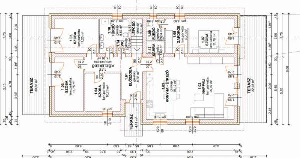
Leírás

Kedves Ingatlankereső! Ajánlom figyelmébe ezt a most épülő családi- házat! Szeretné meglepni szeretteit vagy biztonságban tudni a pénzét? Akkor ha ön is így gondolja ajánlanám ezt az ingatlant!! JÖJJENEK, NÉZZENEK KÖRÜL, HOGYAN IS ALAKÍTANÁK KI AZ ÖNÖK IGÉNYEI SZERINT SZÉP OTTHONNÁ!! Kérem hívjon, találkozzunk a helyszínen, hogy körbesétálhassunk a HELYSZÍNT, nyugodt , szép környezetben megépülő ingatlant, alakítsuk ki együtt az Ön és kedves családja szép új otthonát :) Az energiahatékonyság jegyében HŐSZIVATTYÚ rendszert alkalmazunk, mely nagyon ENERGIATAKARÉKOS FELHASZNÁLÁST tesz lehetővé. A kivitelező törekszik arra,hogy magas minőségű,egyedi kivitelezésű ingatlant alkosson ezen a nem mindennapi környéken!! Az ingatlanoknak mérete és ára van, az otthon igazi értéke viszont felbecsülhetetlen! Mi ezért - az értékbecsléstől a birtokbaadásig - végigkísérünk az ingatlan adásvétel folyamatán, hogy anyagi, jogi és érzelmi biztonságban legyél! Szívügyünk az otthonod! Szerkezeti leírás: Beton alap.Tégla 30-as főfalak + 15cm dryvit szigetelés. Ytong válaszfalak. A külső nyílászárók műanyag szerkezetűek. A belső nyílászárók választhatóak. A tető beton cseréppel fedett.Fűtés hőszivattyúval. Az igény szerinti befejezésnek köszönhetően a hideg-meleg burkolatok kiválaszthatók a műszaki tartalomban rögzített árak szerint. Nekem ebben az ingatlanban az elhelyezkedése mellett, a formálhatósága és a benne rejlő rengeteg lehetőség tetszik a legjobban. Ha Ön is így látja, hívjon, nézze meg, legyen az új tulajdonosa mielőbb! Nem fogja megbánni! Szép napot sikeres vásárlást kívánok! Köszönöm hogy időt szánt a hirdetésemre!

További adatok

  • Azonosító: 1642517
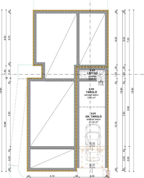
  • Épület szintjei: 2
  • Méret: 151 m2
  • Telek méret: 896 m2
  • Szobák száma: 5 db
  • Félszobák száma: 0 db
  • Fűtés: -
  • Állapot: Új építésű
  • Építési év: 2025
  • Ház szerkezete: Tégla
  • Erkély/terasz: -
  • Melléképület: -
  • Tetőtér: -

Elhelyezkedés