Ingatlanok összehasonlítása

Eladó 82 nm-es 4 szobás Ház Szigetszentmárton

Szigetszentmárton
69.900.000 Ft
852.439 Ft / m2

Leírás

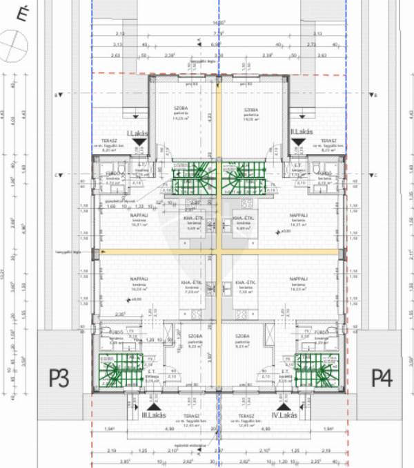
Szigetszentmárton Dunához közeli részén, de a központtól is csak 3 percre gyalog kínálok ELADÓ 82 m2-es 2 szintes, 1+3 szobás kertes lakásokat 4 lakásos társasházban. A Porotherm 30-as téglából 10 cm-es hőszigeteléssel készült lakás földszintjén amerikai konyhás nappali, 1 hálószoba, fürdőszoba, tárolóhelyiség, külön wc, emeletén pedig 2 hálószoba, fürdőszoba wc-vel és gardrób került kialakításra. Már csak 1 db első (69,9 M Ft) és 1 db hásó (71,9 M Ft) érhető el. A tetőszerkezet: Leier cseréppel, fafödémmel, 20 cm kőzetgyapot szigeteléssel megoldott. Nyílászárói háromrétegű műanyag bukó-nyíló ablakok. A lakások fűtése padlófűtés, kondenzációs gázkazánnal. A település „zöldövezeti” részén kellemes környezetben elhelyezkedő ingatlant ajánlom olyan családoknak, akik Budapest városi zajától távol élnék életüket, ahol általános iskola, óvoda, bolt megtalálható, de ha a munka, felsőbb iskola megkívánja, azért a napi ingázás megoldható autóval, BKK HÉV-vel, Volánbusszal. CSOK PLUSZ is igénybe vehető! Így a ház ideális választás többgyermekes családok számára. Ne hagyja ki ezt a remek lehetőséget, vegye fel velem a kapcsolatot! Kérdéseire szívesen válaszolok, VÉGIG VEZETEM A FOLYAMATOKON. Telefonhívásával, üzenetével hozzájárul adatainak a szükséges mértékű kezeléséhez. Várom jelentkezését!

További adatok

  • Azonosító: 1642266
  • Épület szintjei: -
  • Méret: 82 m2
  • Telek méret: 180 m2
  • Szobák száma: 4 db
  • Félszobák száma: 0 db
  • Fűtés: Gáz cirkó
  • Állapot: Új építésű
  • Építési év: 2025
  • Ház szerkezete: Tégla
  • Erkély/terasz: -
  • Melléképület: -
  • Tetőtér: -

Elhelyezkedés