Ingatlanok összehasonlítása

Eladó Ház, Csanytelek

Csanytelek
10.000.000 Ft
123.457 Ft / m2

Leírás

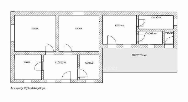
Remek lehetőség Csanyteleken! Csak az OTP Ingatlanpontnál! Megvételre kínálok egy kiváló szerkezeti állapotú családi házat Csanyteleken, a Tömörkényi út közelében, aszfaltos utcában. Az 1438m2-es telken egy főépület, tárolók és ólak vannak. Az ingatlanban a csatornán kívül minden közmű megtalálható. A lakóépület jelenleg 2 külön bejáratú részből áll, de egybenyitható és ezáltal egy jó elrendezésű 2+2 szobás otthon válhat belőle. A ház jelen állapotában egy tisztasági festést követően beköltözhető, de egy belső felújítás után korszerű és értékes ingatlan lesz. A hangulatos hátsó fedett terasz nyári családi összejövetelek színhelye lehet. Míg a kert és a portán található tárolók és ólak lehetőséget biztosítanak arra, hogy házi finomságok kerüljenek a család asztalára. A fűtést gázkonvektorok és cserépkályha biztosítja, a melegvizet villanybojler szolgáltatja. Az ingatlan rendezett környéken található, közel a Tömörkényi úthoz, buszmegálló a közelben van, remek lehetőség családok számára. Annak ellenére, hogy a ház a falu szerves részét képezi, a tulajdoni lapon kivett tanya, szántóként szerepel, tehát kifüggesztéses. Per-, teher- és igénymentes. Nagyon jó ár-érték arány, érdemes megnézni! Amennyiben felkeltette érdeklődését, hívjon bizalommal! Az OTP Ingatlanpont teljes körű ügyintézéssel áll az eladók és vevők rendelkezésére. A kínálatunkból választott ingatlan finanszírozásához kedvezményes hitelkonstrukciót biztosítunk. Az OTP Banknál elérhető Babaváró, falusi CSOK, CSOK Plusz hitel és egyéb kölcsönök intézését díjmentesen vállaljuk. Az adásvételi szerződés megkötéséhez igény szerint ügyvédet biztosítunk. Irodáink Szentes, Petőfi utca 12. a buszmegálló felől, és Csongrád, Fő utca 54. szám alatt várjuk a személyes érdeklődőket. Válasszuk ki együtt az Önnek legmegfelelőbb ajánlatot banki sorban állás nélkül! Referencia szám: M295050-IM

További adatok

  • Azonosító: 1638562
  • Épület szintjei: 1
  • Méret: 81 m2
  • Telek méret: 1438 m2
  • Szobák száma: 2 db
  • Félszobák száma: 0 db
  • Fűtés: Gáz konvektor
  • Állapot: Felújítandó
  • Építési év: 1955
  • Ház szerkezete: Egyéb vegyes (vályog)
  • Erkély/terasz: Nincs
  • Melléképület: -
  • Tetőtér: -

Elhelyezkedés