Ingatlanok összehasonlítása

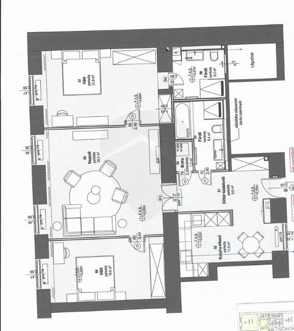
Eladó 98 nm-es 3 szobás Lakás Budapest V. Kerület

Budapest V. Kerület - Belváros
225.000.000 Ft
2.295.918 Ft / m2

Leírás

Fektessen be jövőjébe egy kivételes belvárosi lakás megvásárlásával Budapest egyik legelőkelőbb részén! A Hercegprímás utcában található, 98 négyzetméteres, vadonatúj ingatlan nemcsak az elegancia, hanem a kifinomultság szinonimája is. Ez a három szobás, két fürdőszobás lakás a luxus és kényelem tökéletes harmóniáját kínálja, amely megfelel a legmagasabb elvárásoknak is. Az amerikai konyhás, tágas nappali ideális helyszín baráti összejövetelekhez vagy családi eseményekhez, miközben a beépített bútorok és szekrények maximálisan kihasználják a rendelkezésre álló teret. A lakás teljes légkondicionálással rendelkezik, így a nyári hőségben is biztosítja a kellemes hőmérsékletet. A modern LED hangulatvilágítás egyedülálló atmoszférát teremt, amely mindenkit elvarázsol. A lakás elhelyezkedése páratlan, hiszen a csendes környék és a központi lokáció ötvözete lehetővé teszi, hogy percek alatt eljusson Budapest legfontosabb üzleti és kulturális központjaiba. A közeli közlekedési csomópontok révén a város bármely pontja könnyedén megközelíthető, akár autóval, akár tömegközlekedéssel. Az utcán rendelkezésre álló parkolóhelyek pedig kényelmes megoldást nyújtanak az autóval közlekedők számára. A környék infrastrukturális ellátottsága is kiemelkedő: számtalan bolt, étterem és szolgáltatás található a közelben, így a mindennapi élet kényelme garantált. Ez a belvárosi ingatlan nem csupán otthon, hanem egy értékálló befektetés, amely az idő múlásával egyre nagyobb értéket képvisel. Ez a tehermentes, exkluzív ingatlan tökéletes választás mindazok számára, akik modern, világos és stílusos lakást keresnek, vagy hosszú távú befektetést fontolgatnak. Ha bármilyen kérdése lenne a lakással vagy a környékkel kapcsolatban, ne habozzon felvenni velem a kapcsolatot! Készséggel állok rendelkezésére, hogy együtt megtaláljuk az Ön számára ideális ingatlant.

További adatok

  • Azonosító: 1637072
  • Épület szintjei: -
  • Emelet: -
  • Méret: 98 m2
  • Szobák száma: 3 db
  • Félszobák száma: 0 db
  • Fűtés: Gáz cirkó
  • Állapot: Új építésű
  • Lift: -
  • Erkély/terasz: -

Elhelyezkedés