Ingatlanok összehasonlítása

ELADÓ Új, tégla építésű családi ház!

Tatabánya - Bánhida
41.000.000 Ft
650.794 Ft / m2

Leírás

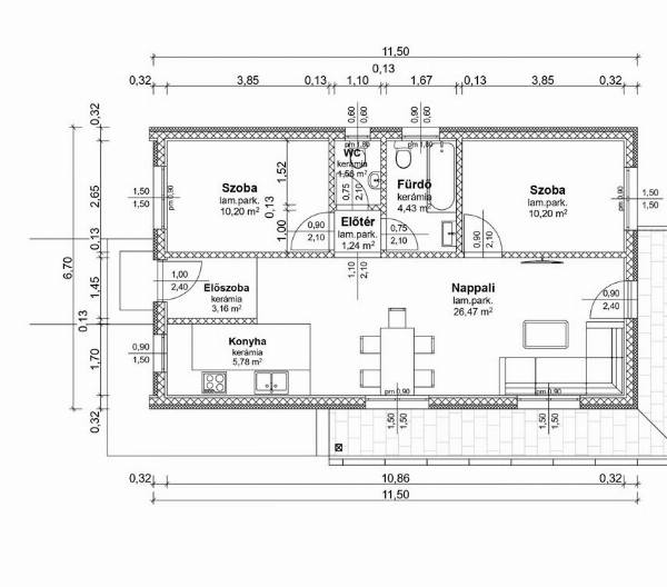
Az új építésű CSALÁDI HÁZAK tervezése átgondolt, több méretben, a kisebb méretű házaktól, egyedi igény szerint nagyobb házak is készülnek.   A 260 nm-es telken épülő családi ház 30 cm-es téglából épül, alapozása sávalap 0,4 cm szélességben és 0,90 cm mélységben, talajnedvesség elleni szigeteléssel. Az aljzat hőszigetelése 10 cm EPS 100 lépésálló lemez beépítésével kerül kialakításra. A végleges Estrich aljzatbeton 6 cm vastagságban készül.   A teherhordó és külső falak 30 cm-es kézi falazóelemből készülnek, belső oldalon gépi vakolattal. A válaszfalak 10 cm vastagságúak. A külső falakra 15 cm-es EPS 80 polisztirol lap hőszigetelést ragasztanak, melyre 1,5 mm-es diszperziós nemes vakolat kerül. A lábazatra 10 cm-es XPS hőszigetelés kerül, melyet választható színű műgyantás gyöngykavics lábazati vakolattal látnak el.   Az épület fűtése és használati melegvíz ellátása, kondenzációs gáztüzelésű kombi gázkazán és égéstermék elvezető tartozékával, manuális termosztáttal, padlófűtéssel készül.   A födémgerendák között cellulóz szigetelés készül 25 cm-es vastagságban. A tetőre beton cserép kerül, Terrán Renova alapcserép választható antracit és téglavörös színben. Horganyzott ereszcsatorna rendszer készül.   A nyílászárók műanyagok, fokozottan hőszigetelt, 6 légkamrás, 3 rétegű üvegezéssel, acél betétes műanyag szerkezettel, fehér színben. Redőny előkészítés igény szerint rendelhető.   A fürdőszobába 210 cm, mosdóba 160 cm magasságig csempeburkolat, a padlóra terv szerint járólap vagy laminált padló kerül.  A szaniterek egyedi megállapodás szerint választhatóak.   A festés színe egyénileg választható, a falakon pasztellszínű diszperziós falfesték, a fa felületeken lazúr festéssel.   Az ELADÓ családi ház alapterülete 63 nm. Elrendezése praktikus, helyiségei: - 1 előszoba, - 1 nappali, - 1 konyha - 2 külön nyíló hálószoba, - 1 közlekedő, - 1 fürdőszoba - 1 wc.   Válassza ezt a magas műszaki színvonalú, minden igényt kielégítő, korszerű családi házat.   A ház kivitelezési ára nem tartalmazza a telek árát, a tereprendezési munkálatokat, a közműveket. Viszont felárral kérhető a tereprendezés, az épület körüli járda elkészítése, térburkolások, kertépítés, riasztó rendszer kiépítése, beüzemelése, sőt még konyhabútor gyártása és beszerelése is.   Átadás garantáltan, a szerződéskötéstől számítva maximum 6 hónapon belül várható. A Tatabánya belterületén lévő 517 nm-es telek vételára 22.860.000,- Ft A közművek a telek előtt megtalálhatóak. A telek területére vonatkozó szabályozási terv alapján Lke-2-es jelű, kertvárosias lakóterület besorolású, melyre az építmény elhelyezés feltételei a következők: - a beépítés módja oldalhatáros, - a megengedett legnagyobb beépítettség 30%, - a megengedett legnagyobb beépítési magasság 4,5 m, - a legkisebb kialakítható telek méret 500 nm, - a kialakítandó legkisebb zöldfelület 50%.   Adatbázisunkban számos eladó-kiadó ingatlan közül választhat. Személyre szabott ügyintézéssel, ügyvédi háttérrel állunk ügyfeleink rendelkezésére. 15 éves értékesítői és vezetői tapasztalat. Minden egy helyen, az ingatlan bemutatásától a kulcsátadásig! Hitelminősítés a Fő téri irodánkban a hét minden napján. Legyen közös a sikerünk!    

További adatok

  • Azonosító: 1576028
  • Épület szintjei: 1
  • Méret: 63 m2
  • Telek méret: 517 m2
  • Szobák száma: 4 db
  • Félszobák száma: 0 db
  • Fűtés: -
  • Állapot: Új építésű
  • Építési év: 2024
  • Ház szerkezete: Tégla
  • Erkély/terasz: -
  • Melléképület: -
  • Tetőtér: -

Elhelyezkedés