Ingatlanok összehasonlítása

Eladó 62 nm-es 3 szobás Lakás Budapest IV. Kerület

Budapest IV. Kerület
79.300.000 Ft
1.279.032 Ft / m2

Leírás

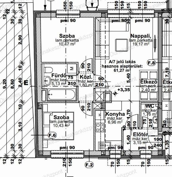
Budapesten, IV. kerületben csendes mellékutcában, ÚJ ÉPÍTÉSŰ, CSOK PLUSZ-KÉPES TÁRSASHÁZI LAKÁSok eladók! A társasház Újpest városközpontban épül, kiválóan megközelíthető, és elérhető! A lakások 2-től 4 szobáig kerülnek kialakításra, jó elrendezéssel, erkéllyel. Fedett garázs és felszíni parkoló vásárolható. A lakásokhoz tárolók is vásárolhatók. Magas műszaki tartalommal épülő ingatlan, hőszivattyús fűtés és hűtés, magas minőségű nyílászárók, valamint szabadon választható burkolatok, szaniterek. ZÖLD HITEL, CSALÁDI OTTHONTEREMTÉSI KEDVEZMÉNY (CSOK) és az ILLETÉKKEDVEZMÉNYEK igénybe vehetők, hitelügyintézésben díjtalanul segítséget nyújtunk. A kivitelező megbízható, leinformálható, a kerületben referenciákkal rendelkezik! INGYENES HITELÜGYINTÉZÉSSEL tudunk segíteni a legkedvezőbb hitel kiválasztásában! Ingatlan eladásban kedvezményes feltételekkel tudunk segíteni. Várjuk megtisztelő hívását időpontegyeztetéshez.

További adatok

  • Azonosító: 1574794
  • Épület szintjei: -
  • Emelet: -
  • Méret: 62 m2
  • Szobák száma: 3 db
  • Félszobák száma: 0 db
  • Fűtés:
  • Állapot:
  • Lift: -
  • Erkély/terasz: -

Elhelyezkedés