Ingatlanok összehasonlítása

Eladó Lakás, Budapest 14. ker.

Budapest XIV. Kerület
34.900.000 Ft
851.220 Ft / m2

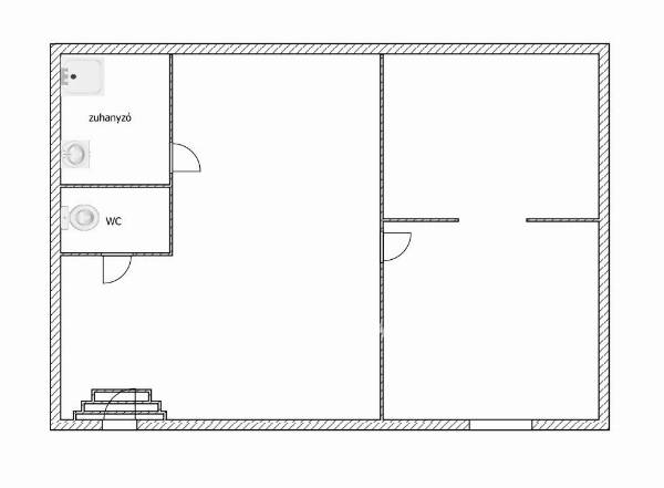
Leírás

FÉLSZUTERÉN LAKÁS/ÜZLETHELYISÉG A FOGARASI ÚTON! Közel a Népstadion úti Metromegállóhoz és a Fogarasi úti Tescohoz eladó egy 2023-ban felújított, bútorozatlan félszuterén helyiség. A helyiség két egybenyíló szobából és egy nagyobb fogadóhelyiségből áll. A válaszfalak bonthatók és mozgathatók. Víz két helyiségben is kialakításra került, emiatt hasznosítható fodrászat vagy kozmetikai szalonként is. Tartozik hozzá egy külön zuhanyfülkés fürdőszoba mosdókagylóval és külön WC. A nagyszoba 24 m2 , a kisszobák pedig 9 és 11 négyzetméteresek. Belmagasság: 2.7m Fűtése elektromos infrapanel. Parkolás a környező utcákban lehetséges. Lakhatásra is alkalmas, AIRBNB engedélyezett a társasházban! Október 1-től költözhető! Infrastruktúra: közel van a Fogarasi úti Tesco áruház Közlekedés : 98-as autóbusz, 80-as trolibusz a Népstadion és az Egressy tér felé. Referencia szám: M282208

További adatok

  • Azonosító: 1569744
  • Épület szintjei: 1
  • Emelet: Földszint
  • Méret: 41 m2
  • Szobák száma: 1 db
  • Félszobák száma: 2 db
  • Fűtés: Elektromos
  • Állapot: Felújított
  • Lift: Nincs
  • Erkély/terasz: Nincs

Elhelyezkedés