Ingatlanok összehasonlítása

Eladó 168 nm-es 5 szobás Ház Dunakeszi

Dunakeszi
249.900.000 Ft
1.487.500 Ft / m2

Leírás

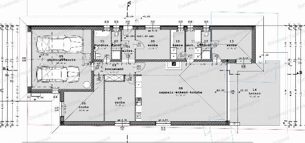
Eladó egy LUXUS, ÚJ ÉPÍTÉSŰ CSALÁDI HÁZ DUNAKESZIN! Új építésű, ALACSONY ENERGIAFELHASZNÁLÁSÚ, családi ház eladó Dunakeszi egyik kedvelt részén! Amit érdemes tudni: A fűtésről és a hűtésről HŐSZIVATTYÚ gondoskodik puffertartállyal felszerelve, PADLÓFŰTÉSSEL és radiátorokkal. Az ablakokon ELEKTROMOS alumínium redőnyök, klíma- és napelemkiállás, külső és belső kamerarendszer bevezetékezve. 3 fázis, H TARIFA. Alumínium teraszajtó. Gránit párkányok. Hatalmas, 35 nm-es terasz. 3 rétegű üvegezés a nyílászárókon. Főfalak 30 cm-es okostéglából, 10 cm dryvit szigeteléssel. Kiváló minőségben épülő, luxus családi ház. referenciákkal rendelkező kivitelezőtől! Főbb jellemzők: Alapterület: 168 nm Szobák száma: A családi házban 53 nm-es nappali + 7 nm-es konyha található, amelyből nyílik egy 4,5 nm-es kamra. 4 egész szoba, közlekedő, fürdőszoba, háztartási helyiség, külön WC, és az előszobából is megközelíthető a 6 nm-es garázs. Elhelyezkedés: Csendes, nyugodt környezet. A közelben több óvoda, iskola és bevásárlási lehetőség is elérhető, ideális családoknak. Környezet, közlekedés: Budapest elérhető közelségben. Jó elhelyezkedés: könnyen megközelíthető az M2-es, a vasútállomás és a város főbb pontjai. Kérem forduljon hozzám bizalommal, és egyeztessünk megtekintési időpontot! TEKINTSE MEG IRODÁNK TOVÁBBI KÍNÁLATÁT LOGÓNKRA KATTINTVA.

További adatok

  • Azonosító: 1564178
  • Épület szintjei: -
  • Méret: 168 m2
  • Telek méret: 963 m2
  • Szobák száma: 5 db
  • Félszobák száma: 0 db
  • Fűtés: -
  • Állapot: -
  • Építési év: -
  • Ház szerkezete: -
  • Erkély/terasz: -
  • Melléképület: -
  • Tetőtér: -

Elhelyezkedés