Ingatlanok összehasonlítása

Kiadó Irodaház, Budapest 9. ker.

Budapest IX. Kerület
1.770.255 Ft
2.950 Ft / m2

Leírás

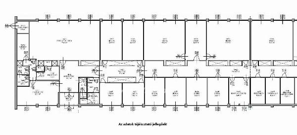
Budapest IX. kerület Gubacsidűlő részén, 600 m2-es iroda 7,5 EUR/m2/hó nettó áron kiadó. Az iroda Pest egyik ipari parkjában, tömegközlekedéssel és autóval is könnyen megközelíthető, irodaházas környezetben helyezkedik el. A hirdetésben szereplő egy szintes irodaházrész saját külső bejárattal rendelkezik. A 7,5 EUR/m2/hó nettó árral kalkulált hirdetési áron felül fizetendő az ÁFA, valamint a 24 órás portaszolgálat, őrzés-védelem, karbantartás, fűnyírás, hóeltakarítás díja, 2 EUR/m2/hó + ÁFA. Parkolni a sorompóval zárt udvaron, az épület mögötti területen lehet, ennek díja 20 EUR/gépkocsi/hó + ÁFA. A fűtést gázkazán biztosítja, amit hűtő-fűtő klímával lehet kiegészíteni. Bevásárlóközpontok a közelben. 2024. január 15-től bérelhető. További lehetőség, hogy ugyanezen a területen több, különböző méretű, köztük üzletként is használható iroda is kiadó! Bővebb információért keressen telefonon! Referencia szám: M262270

További adatok

  • Azonosító: 1525791
  • Méret: 600 m2
  • Fűtés: Gáz cirkó
  • Állapot: Átlagos
  • Iroda elhelyezkedése: Egyéb
  • Építés éve: 1980
  • Tetőtér: -
  • Kaució: 0 Ft
  • Bútorozott: -
  • Gépesített: -

Elhelyezkedés