Ingatlanok összehasonlítása

Napelemmel felszerelt modern Otthon Hidason

Hidas Arany János utca
79.999.000 Ft
689.647 Ft / m2

Leírás

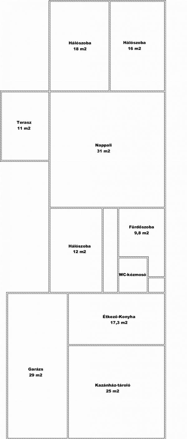
Kedves Ingatlankeresők! Szeretnénk bemutatni Önöknek ezt a varázslatos otthont, mely Hidason, egy csendes utcában található, mindössze 30 km-re Pécstől és 25 km-re Szekszárdtól. Az ingatlan elrendezése kiváló, minden helyiség az előszobából megközelíthető, így praktikus és könnyen élhető tereket biztosít. A 116 m²-es otthon 3 hálószobával, tágas nappalival, konyha-étkezővel és egy fürdőszobával rendelkezik, amelyben plusz egy külön WC is kialakításra került. Az ingatlant minőségi anyagok felhasználásával újították fel, műszaki tartalma pedig kifejezetten energiatudatos megoldásokat kínál. – Falazata túlnyomórészt tégla, csupán a hátsó fal vályog – A téglafalak 10 cm-es hőszigetelést kaptak – A padlás 15 cm-es üveggyapot szigeteléssel ellátott A hideg téli napokon a radiátoros és padlófűtés együttesen biztosítja az otthon melegét, míg a fürdőszobában elektromos radiátor is felszerelésre került a maximális komfort érdekében. A fűtés többféle módon is megoldható: – vegyes tüzelésű kazán (pellet használatára is alkalmas) – kondenzációs gázkazán – 6 kW-os napelemrendszer + napkollektor + 900 literes puffertartály Ennek köszönhetően a rezsiköltség rendkívül kedvező, a fűtés átalány mindössze 14.000 Ft/hó. A napelemrendszer még a régi, kedvező éves elszámolásban működik, tovább növelve a gazdaságosságot. További értéknövelő tényező, hogy akkumulátor telepítésére pályázat van folyamatban. A házban hűtő-fűtő klímák is helyet kaptak, így minden évszakban ideális hőmérséklet biztosítható. Az ingatlan különlegességei közé tartozik: – vízlágyító rendszer – prémium minőségű burkolatok (spanyol, brazil és olasz gránit) A 2416 m²-es telek igazán egyedi hangulatot nyújt, hiszen saját akác- és dióerdő is tartozik hozzá. Az udvaron található: – felújított présház – 10 méter hosszú, téglaboltozatú, száraz pince A házból közvetlenül megközelíthető: – 29 m²-es garázs – 25 m²-es kazánház-tároló A dupla garázs további extrákkal bővült: klíma került beszerelésre, valamint teljes egészében lambériázva lett, így akár műhelyként vagy hobbitérként is kiválóan használható. Az ingatlanhoz korszerű bio szennyvízrendszer is kiépítésre került, amely locsolásra alkalmas vizet állít elő, ezzel is csökkentve a fenntartási költségeket. Ha Ön egy modern műszaki tartalommal rendelkező, alacsony fenntartású, mégis természetközeli otthont keres, ahol a nyugalom és a kényelem egyszerre adott, akkor ezt az ingatlant érdemes személyesen is megtekinteni. Hívjon bizalommal, és tekintse meg élőben!

További adatok

  • Azonosító: 1517653
  • Épület szintjei: 1
  • Méret: 116 m2
  • Telek méret: 2416 m2
  • Szobák száma: 4 db
  • Félszobák száma: 0 db
  • Fűtés: Gáz cirkó
  • Állapot: Felújított
  • Építési év: 1980
  • Ház szerkezete: Tégla
  • Erkély/terasz: Van
  • Melléképület: -
  • Tetőtér: -

Elhelyezkedés