Ingatlanok összehasonlítása

3 háló + nappalis felújított lakás a belváros központjában!

Pécs - Belváros Mária utca
74.900.000 Ft
727.184 Ft / m2

Leírás

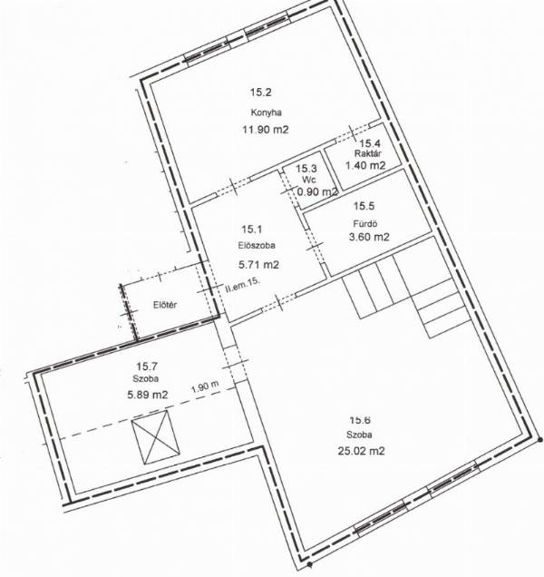
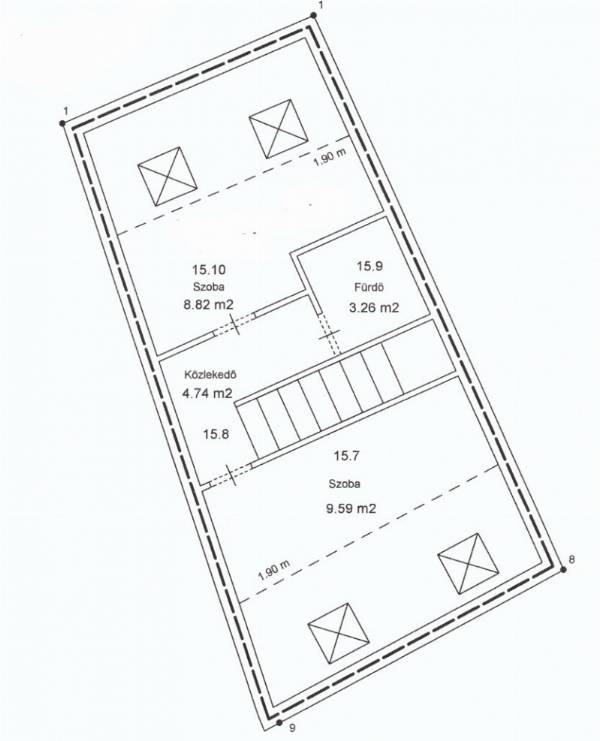
Pécs - Belváros központjában, a Mária utcában egy bruttó 103 m2 alapterületű 3+1 szobás, belső kétszintes dupla fürdős felújított lakás eladó! Az ingatlan jelenleg is jó elosztású, de egy kis fantáziával bárhogy alakítható. Mostani állapotában a következő helyiségekből áll: Alsó szinten nagy méretű étkezős konyha spájzzal, tágas nappali, egy abból nyíló szoba, valamint kádas fürdőszoba és egy külön WC található. A felső szinten pedig két szoba, illetve egy zuhanyzós fürdőszoba Wc-vel került kialakításra. Az épület karban tartott, nemrégiben külső szigetelést kapott, valamint a tető is felújításra került. A lakás nagyon hangulatos, jó fényviszonyokkal rendelkezik. Minden helyiségbe rendkívül jó minőségű és jól szigetelő, az épület műemlék jellegéhez illeszkedő egyedi gyártású fa ablakok kerültek beszerelésre. A lakás fűtését korszerű gázkazán szolgáltatja, de minden szobában hűtő-fűtő klíma is megtalálható. Ezeknek köszönhetően az ingatlan fenntartási költsége nagyon kedvező, havi szinten átlagosan kb. 20.000 Ft a közös költséggel és a rezsivel együtt. A lakáshoz tartozik egy közös tároló, valamint egy közös használatú pince is. Központi elhelyezkedésének köszönhetően tökéletes választás befektetési célra is, nagyon könnyen kiadható, egyébként folyamatosan bérbe volt adva. De családok számára is kiválóan alkalmas. A lakás 2 perc gyalogtávra helyezkedik el a Széchenyi tértől, a sétáló utcáktól, éttermektől és minden szükséges kiszolgáló egységtől, de az egyetemek is 5-10 perc alatt elérhetőek. A vételár a lakásban található bútorokat is tartalmazza, így ide már tényleg csak beköltözni kell, vagy adott esetben azonnal bérbe adható. Az ingatlan tehermentes, rövid időn belül birtokba vehető. Az ingatlanról virtuális séta is készült, amely az alábbi linken tekinthető meg: https://my.matterport.com/show/?m=nZvjVKvDcbM Keressen bizalommal!

További adatok

  • Azonosító: 1515232
  • Épület szintjei: 2
  • Emelet: 2
  • Méret: 103 m2
  • Szobák száma: 3 db
  • Félszobák száma: 1 db
  • Fűtés: Gáz cirkó
  • Állapot: Felújított
  • Lift: Nincs
  • Erkély/terasz: Nincs

Parkolás

  • Közterületen fizetős

Elhelyezkedés