Ingatlanok összehasonlítása

Eladó Ház, Kecskemét

Kecskemét
74.900.000 Ft
756.566 Ft / m2

Leírás

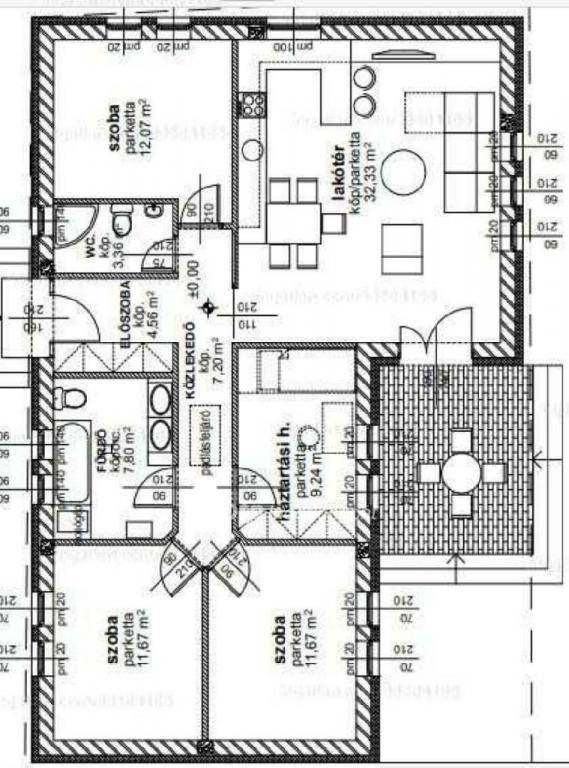
Kecskemét legdinamikusabban fejlődő kertvárosi részén Katonatelepen eladó ÚJ építésű családi ház, a még most érvénybe lévő CSOK igénybe vételi lehetőségével is. A közel 100nm-es hasznos alapterületű ingatlan 3 különálló hálószobából, egy amerikai konyhás nappaliból, fürdő + WC, különálló WC, háztartási helyiség és közlekedő helyiségekből áll. A nappalihoz közvetlenül kapcsolódik egy 16nm-es burkolt terasz is. A ház osztatlan közös tulajdonú telekre épül, amelyre használati megosztási szerződés készül, így ehhez a házhoz 539 nm telek terület tartozik. A két ingatlan mely egy telekre épül egymás tükörképei lesznek. Az ingatlan az alábbi műszaki tartalommal kerül kulcsrakészen átadásra: külső hőszigetelés 15 cm vastagságban, külső nyílászárók fehér színű, bukó-nyíló 5 légkamrás szigetelt 3 rtg. üvegezéssel Kömmerling , Gealan fehér műanyag, rejtett redőnyökkel kézi működtetéssel szúnyogháló nélkül. Beltéri ajtók telelappal átfogó tokos választható színben. Gépészet: Bosch 2300 kombi kondenzációs gázkazán padlófűtéssel, 1 db hordozható szoba termosztáttal. Az ingatlan ára tartalmazza a fürdőszobákban, wc-ben a szanitereket, továbbá a fali csempézést 2 méter magasságig. A szaniterek választhatóak adott árkategórián belül. Szobák és a nappali laminált burkolatot kap. A készültségi állapothoz mérten egyedi igényeket figyelembe vesz a beruházó, felár ellenében, erről érdeklődjön irodánkban. Az ingatlan finanszírozható államilag támogatott hitel , CSOK igénybe vételével is mely ügyintézésben is állunk rendelkezésére.

További adatok

  • Azonosító: 1488823
  • Épület szintjei: 1
  • Méret: 99 m2
  • Telek méret: 533 m2
  • Szobák száma: 2 db
  • Félszobák száma: 2 db
  • Fűtés: Gáz cirkó
  • Állapot: Új építésű
  • Építési év: 2023
  • Ház szerkezete: Tégla
  • Erkély/terasz: Van
  • Melléképület: -
  • Tetőtér: -

Elhelyezkedés