Ingatlanok összehasonlítása

Egyetemvárosban újépítésű lakóparki lakások eladók!

Pécs - Egyetemváros
46.500.000 Ft
1.453.125 Ft / m2

Leírás

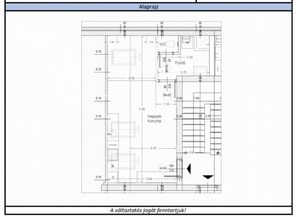
Pécs- Egyetemvárosban, három épülettömbből álló modern új építésű lakóparkban lakások, üzlethelyiség és gépkocsi parkolók még korlátozott számban eladók. A három épületben összesen 17 lakás, 2 üzlethelyiség és 19 felszín alatti gépkocsiparkoló kerül kialakításra. A lakások mérete és fekvése változó, így mindenki megtalálja a számára ideális ingatlant. A lakások belső elrendezése a Vevő kívánsága szerint rövid ideig még módosíthatók. A hideg-meleg burkolatok, szaniterek, a belső nyílászárók a műszaki tartalom szerinti ár kategóriában szabadon választhatók. Az épületek műszaki átadása 2023.IV. negyedévben várható.

További adatok

  • Azonosító: 1204845
  • Épület szintjei: 1
  • Emelet: 2
  • Méret: 32 m2
  • Szobák száma: 1 db
  • Félszobák száma: 0 db
  • Fűtés: Gáz cirkó
  • Állapot: Új építésű
  • Lift: Nincs
  • Erkély/terasz: Nincs

Parkolás

  • Terem garázs
  • Közterületen fizetős

Elhelyezkedés